调节挡板风门
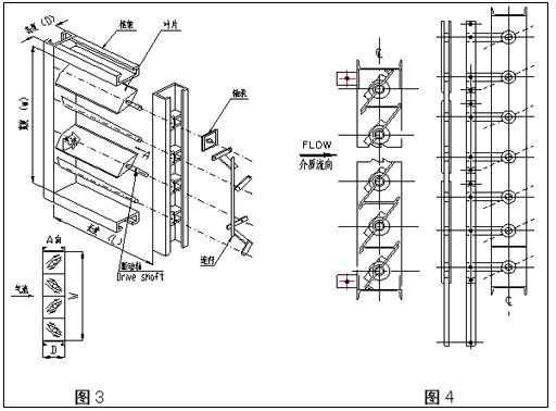
| 功能 用于调节介质流量(如:一、二次风比例),烟气流量(再循环烟气管道)、磨煤机通风量和热风温度等。 安装位置 结构设计 | |
![]() | |
| 性能要求 良好的调节性能:挡板开度在15°~75°范围内,其阻力系数与开度之间接近线性关系。 挡板叶片具有流线型形状,改善气流尾流分配状况。 图5为三种不同结构的调节挡板风门的调节特性曲线。 调节挡板风门的调节灵活性由电动执行器来保证。电动执行器的驱动力矩由烟风道的流量压力温度以及轴承和连杆的结构来确定。确定驱动力时需考虑转动力矩的作用,只有克服这一力矩才能使挡板调节时转动自如。 防止颤抖。部分开启的挡板在气流中发生颤抖,颤抖剧烈时会造成密封与轴系的损坏,故连杆与紧固件都要保持张紧而不松动。 执行机构驱动杆与挡板风门的连杆还可采用差动连接来改善调节性能。 特殊要求 |



防爆门
管道连接件
恒力弹簧支吊架
挡板风门


